볼스크류용 서포트유니트

서포트유니트는 볼스크류 양 축단을 정밀하게 지지해 주는
역할을 합니다. ㈜성일기공은 규격별/하중별/용도별로
다양한 제품을 공급함으로써 고객들에게 높은 편의성을 제공합니다.
그리스 주입형 서포트유니트
구조




- 서포트 유니트의 베어링 커버에 그리스 주입이 가능한 니플과 그리스 이동 통로를 만들어 베어링에 그리스 주입이 가능한 구조임.
- 오일씰이 있어 그리스의 유출, 먼지유입을 막음
- 고정도 로크너트가 함께 판매됨
그리스 주입형 서포트유니트의 특징
- 쉽고 빠른 그리스 주입 : 서포트유니트와 볼스크류의 분해 없이 설치되어 있는 상태에서 바로 그리스 니플을 통해 그리스 주입이 가능한 간편한 구조임.
- 윤활 성능 증가 및 베어링 마찰 감소 : 주기적인 그리스 주입이 가능하기 때문에 베어링의 구동으로 인한 발열을 억제하여 베어링의 마찰, 마모 등을 감소시킬 수 있어 베어링의 수명을 연장시킬 수 있음.
- 그리스가 잘 증발하는 환경 또는 수직 구동하는 환경에서 사용하는 경우 그리스가 하부로 몰려 상부 베어링의 윤활이 원활하지 않을 때 추가적인 그리스 주입으로 구동을 용이하게 할 수 있음.
그리스 주입 방법
- 서포트 유니트가 설치된 상태에서 볼스크류를 천천히 회전시키며 그리스 니플을 통해 그리스를 서서히 주입해주세요.
- 그리스 권장 주입량은 아래의 표를 참조해주세요.
- 장비의 구동 조건 및 그리스 주입 주기에 따라 실 주입량을 조절해주세요.
- 그리스를 급격하게 주입하거나 주입된 그리스 양이 과도할 경우 오일씰이 정위치에서 이탈할 수 있으니 주의해주세요.

그리스 권장 주입량
| 베어링형번 | 적용모델 | 권장 그리스 주입량 (g) | ||
|---|---|---|---|---|
| 2열(DF/DB) | 3열(DFD) | 4열(DFF) | ||
| 7203AW | BK-17-G | 4 | – | – |
| FK-17-G | ||||
| 7004AW | BK-20-G | 4 | – | – |
| 7204AW | FK-20-G | 4 | – | – |
| 7205AW | BK-25-G | 4 | – | – |
| FK-25-G | ||||
| 7206AW | BK-30-G | 6 | – | – |
| FK-30-G | ||||
| 7208AW | BK-40-G | 8 | – | – |
| FK-40-G | ||||
| 17TAC 47C | SWBK-17-G | 4 | 6 | – |
| 20TAC 47C | SWBK-20-G | 4 | 6 | – |
| 25TAC 62C | SWBK-25-G | 4 | 6 | – |
| 30TAC 62C | SWBK-30-G | 4 | 6 | – |
| 35TAC 72C | SWBK-35-G | 4 | 6 | 8 |
| 40TAC 72C | SWBK-40-G | 4 | 6 | 8 |
| 50TAC 100C | SWBK-50-G | 4 | 6 | 8 |
제품 주문방법

| ① 코드 | 표기 | 베어링 정밀도 | 예압 |
|---|---|---|---|
| P5 | P5 | 중예압 | |
| C8 | 일반 | 중예압 | |
| P0-C7 | 일반 | 경예압 |
| ② 표면처리 | 표기 | 표면처리 |
|---|---|---|
| 무기호 | 흑색산화피막 | |
| RA | 저온흑색크롬도금(레이던트) |
| 그리스 종류 | 표준 | LG2 | AFE-CA | AFF | HT-Z1 | NBU-15 | XL-600 |
|---|---|---|---|---|---|---|---|
| 표기 | 무기호 | AG | AE | AF | AH | AN | AX |
※ 그리스 교체에 대한 세부 내용은 서포트유니트 고객 주문 사양의 제작 안내 페이지 내용을 참조하여 주시기 바랍니다.
사용베어링
| 베어링내경 (mm) | 제품번호 | 제품코드 별 사용베어링 | |||||
|---|---|---|---|---|---|---|---|
| BK-G | FK-G | SWBK-G | P5 | C8 | P0-C7 | TAC(SWBK-G) | |
| 17 | BK-17-G | FK-17-G | SWBK-17-G | 7203ATYNDFMP5 | 7203AWDFM | 7203AW | 17TAC 47C |
| 20 | FK-20-G | SWBK20-G | 7204ATYNDFMP5 | 7204AWDFM | 7204AW | 20TAC 47C | |
| BK-20-G | 7004ATYNDFMP5 | 7004AWDFM | 7004AW | ||||
| 25 | BK-25-G | FK-25-G | SWBK-25-G | 7205ATYNDFMP5 | 7205AWDFM | 7205AW | 25TAC 62C |
| 30 | BK-30-G | FK-30-G | SWBK-30-G | 7206ATYNDFMP5 | 7206AWDFM | 7206AW | 30TAC 62C |
| 35 | BK-35-G | FK-35-G | SWBK-35-G | 7207ATYNDFMP5 | 7207AWDFM | 7207AW | 35TAC 72C |
| 40 | BK-40-G | FK-40-G | SWBK-40-G | 7208ATYNDFMP5 | 7208AWDFM | 7208AW | 40TAC 72C |
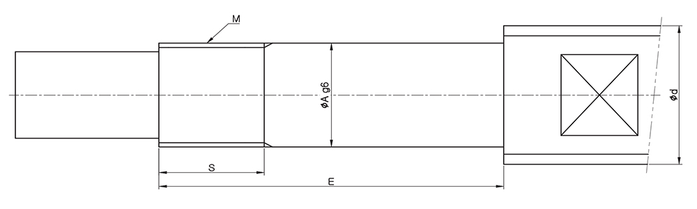
볼스크류 고정측 축단의 권장 형상 (일반 하중용)

| 볼스크류 외경 (mm) |
베어링 부 외경 | 로크너트 | 고정측 | ||||||||
|---|---|---|---|---|---|---|---|---|---|---|---|
| d | A | 제품 번호 |
규격 M x pitch |
BK | FK | ||||||
| 제품 번호 | E | S | 제품 번호 | E | S | ||||||
| Ø25 – Ø28 | 17 | RN-17 | M17 x 1.0 | BK-17-G | 65 | 17 | FK-17-G | 67 | 17 | ||
| 20 | RN-20 | M20 x 1.0 | BK-20-G | 65 | 17 | FK-20-G | 73 | 17 | |||
| Ø30 – Ø36 | 25 | RN-25 | M25 x 1.5 | BK-25-G | 80 | 20 | FK-25-G | 86 | 20 | ||
| Ø40 | 30 | RN-30 | M30 x 1.5 | BK-30-G | 87 | 25 | FK-30-G | 87 | 25 | ||
| Ø45 | 35 | RN-35 | M35 x 1.5 | BK-35-G | 93 | 28 | FK-35-G | 93 | 28 | ||
| Ø50 – Ø55 | 40 | RN-40 | M40 x 1.5 | BK-40-G | 114 | 35 | FK-40-G | 114 | 35 | ||
볼스크류 고정측 축단의 권장 형상 (고하중용)

| 볼스크류 외경 (mm) |
베어링 부 외경 | 로크너트 | 고정측 | ||||
|---|---|---|---|---|---|---|---|
| d | A | 제품 번호 |
규격 M x pitch |
SWBK | |||
| 제품 번호 | E | S | |||||
| Ø25 – Ø28 | 17 | HLRN-17 | M17 x 1.0 | SWBK-17-G | DF | 93 | 23 |
| DFD | 108 | ||||||
| 20 | HLRN-20 | M20 x 1.0 | SWBK-20-G | DF | 93 | 23 | |
| DFD | 108 | ||||||
| Ø30 – Ø36 | 25 | HLRN-25 | M25 x 1.5 | SWBK-25-G | DF | 98 | 26 |
| DFD | 113 | ||||||
| Ø40 | 30 | HLRN-30 | M30 x 1.5 | SWBK-30-G | DF | 98 | 26 |
| DFD | 113 | ||||||
| Ø45 | 35 | HLRN-35 | M35 x 1.5 | SWBK-35-G | DF | 101 | 28 |
| DFD | 116 | ||||||
| DFF | 131 | ||||||
| Ø50 – Ø55 | 40 | HLRN-40 | M40 x 1.5 | SWBK-40-G | DF | 106 | 30 |
| DFD | 121 | ||||||
| DFF | 136 | ||||||
| Ø63 – Ø70 | 50 | HLRN-50 | M50 x 1.5 | SWBK-50-G | DF | 124 | 34 |
| DFD | 144 | ||||||
| DFF | 164 | ||||||






